4 Beds, 3 Baths, 3462 SQ. FT.
The Pinnacle
The Pinnacle
4 Beds, 3 Baths, 3462 SQ. FT.
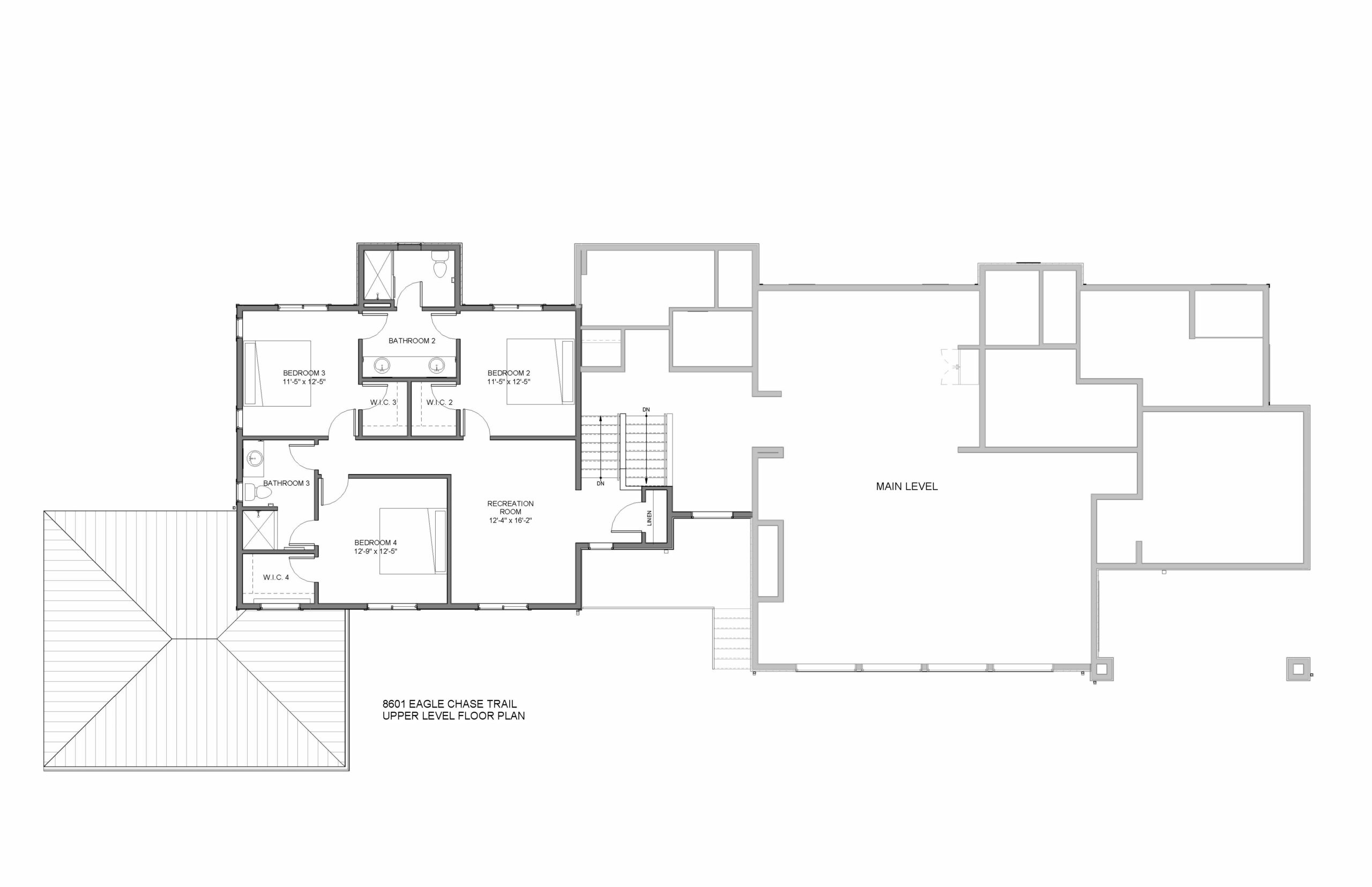
Spacious two-story home offering 3,462 sq ft of thoughtfully designed living space. The main level features a private primary suite, open-concept great room, expansive kitchen with island and pantry, dining area, laundry room, and powder bath. Upstairs includes three additional bedrooms, two full bathrooms, and a large recreation room. Outdoor living is enhanced with a covered patio, deck, and patio areas. Three-car garage configuration includes a two-car garage plus a separate one-car garage. Ideal layout for both everyday living and entertaining.
The Pinnacle
Bedrooms
4
Bathrooms
3
Garage
3 Car
Area
3462 SQ. FT.

